 |
Calculer un temps d’usinage et compléter une fiche de phase
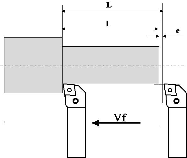
- Donner les définitions des différents temps (Tt, Tf, Ts...) - Calculer un temps technologique en Tournage. - Calculer un temps technologique en Fraisage. - Décoder une fiche d’instruction détaillée - Compléter une fiche de phase (Temps de série, Temps unitaire et simogramme)
|